Строительство спортивной арены и конгресс-холла планируется в Усть-Каменогорске
В Усть-Каменогорске планируется возведение нескольких крупных спортивно-культурных объектов. Аким Восточно-Казахстанской области Нурымбет Сактаганов проехал по предполагаемым площадкам будущего строительства, оценив их расположение и готовность инфраструктуры, передает Kazinform.
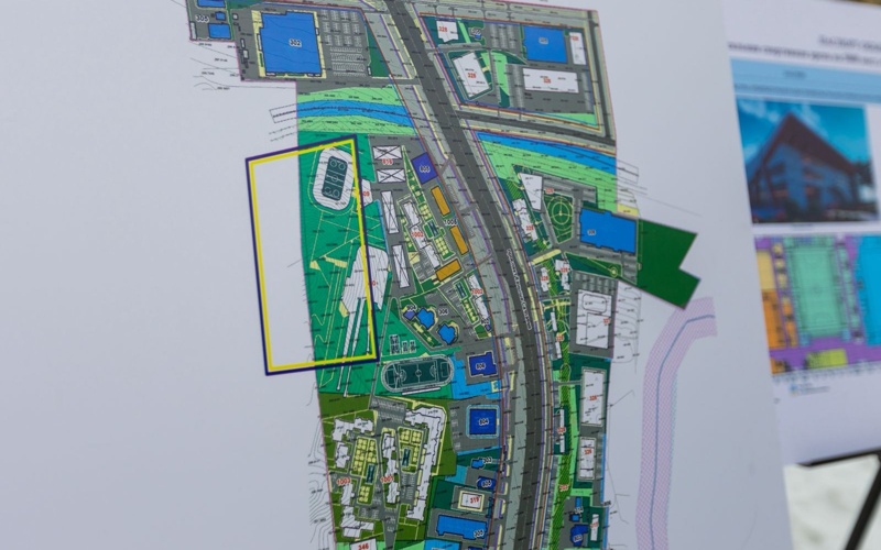
Как сообщает акимат области, первым объектом стал участок в 19-м жилом районе по проспекту И. Есенберлина, рядом с Монументом Независимости. Здесь рассматривается возможность возведения двух крупных комплексов — многофункционального концертного центра (Конгресс-холла) на 1500 мест и ледового комплекса на 500 мест. Этот комплекс станет тренировочной базой для развития некоторых зимних видов спорта. Для этих целей предусмотрена территория площадью 9,8 га. Значительно удешевить и ускорить процесс строительства конгресс-холла позволит наличие готового проекта, аналогичного тем, что есть в других регионах. Сейчас необходимо провести его привязку к местности и государственную экспертизу.

Глава региона также посетил площадку за жилым комплексом «ЛИК» по проспекту К. Сатпаева. Этот участок, находящийся в государственной собственности, рассматривается под строительство универсальной спортивной арены на 5000 мест и современного бассейна. Масштабный спортивный объект станет одним из крупнейших в регионе и позволит принимать турниры национального уровня. Помимо универсальной арены здесь будут залы художественной гимнастики, восточных единоборств, баскетбола, волейбола и большой тренажерный зал, что создаст условия для тренировочных и соревновательных процессов.

— Важно предусмотреть удобные подъездные пути к этим крупным объектам и достаточное количество парковочных мест, чтобы не было скопления автомобилей, и люди могли спокойно приезжать и посещать мероприятия, — подчеркнул Нурымбет Сактаганов.
По словам главы региона, строительство новых культурных и спортивных объектов — стратегическое направление, способное оживить городскую среду, расширить возможности для массового спорта, отдыха и проведения крупных мероприятий. Кроме того, аким области обратил внимание на то, что спортивные объекты должны быть во всех районах города, в том числе, и в отдаленных. В частности, он поручил внести соответствующие предложения по строительству такого объекта в микрорайоне Согра.